villa SA

Joun

2019

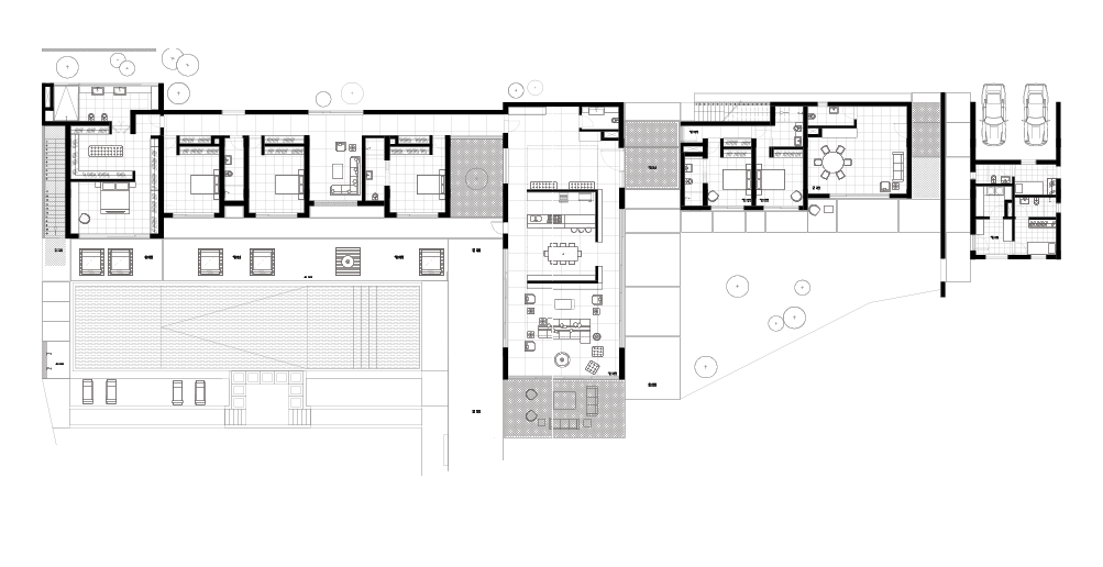
Situated in the picturesque village of Joun, nestled among the seven hills of the Chouf district in South Lebanon, Villa SA offers a stunning retreat overlooking the mesmerizing vistas of Saida. Crafted as a haven for a family of five, longing for a sanctuary in their homeland, the villa is a manifestation of their dream, a single-level chalet-like dwelling, conceived to provide serenity and repose for their retirement years. The consolidation of two parcels into one generously-sized plot spanning 2500m² presented an opportunity for expansive grounds. Villa SA embodies the essence of familial gatherings and conviviality, reflected in its dual gardens, one intimate and private, the other inviting and communal. Featuring four bedrooms overlooking the central swimming pool, along with a spacious living area, two guest rooms, and a gymnasium, the design seamlessly integrates indoor and outdoor spaces, fostering a sense of connectivity with nature. Transparency, privacy, and comfort are the hallmarks of every architectural facet of this residence

A map of a small hillside town with roads, houses, and a red triangular marker indicating a specific location.